Les infos Essentielles
Idéalement situé en hyper centre de Dunkerque, Rue de la Marine, sur un axe très fréquenté menant au Centre Marine et de la place Jean Bart.
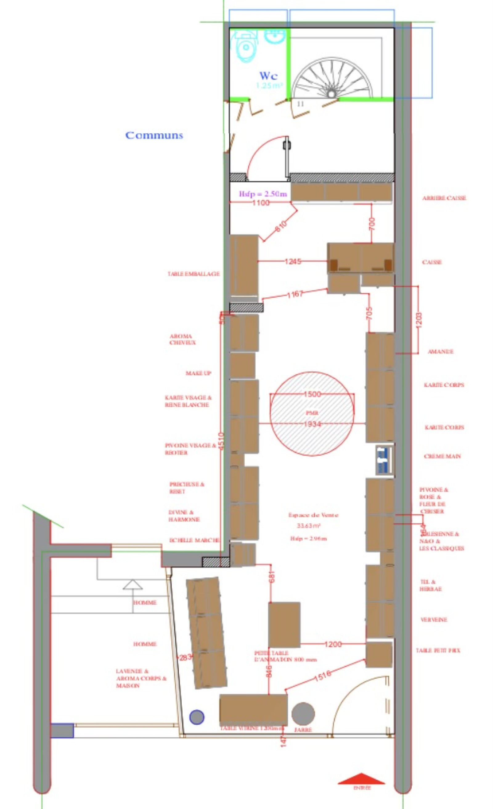
Ce local, entièrement rénové il y a 5 ans, offre une surface de vente lumineuse, un espace boutique avec sanitaire ainsi qu'une réserve. Emplacement numéro 1, à deux pas de la plage, de la Place Jean Bart et de tous commerces. Forte visibilité et passage piéton élevé. Idéal pour toute activité commerciale ou de services. Droit d'entrée 48 000.00 € TTC
Les infos Financières
* HC : Hors charges
Localisation Du bien
-
Commerces et santé
-
Loisirs
-
Ecoles
-
Transports
-
Pratique
Les infos Energetiques
La base légale du traitement repose sur l’intérêt légitime de l'Agence / du Réseau.
Elles sont conservées jusqu'à demande de suppression et sont destinées à l'Agence / au Réseau.
Conformément à la loi « informatique et libertés », vous pouvez exercer votre droit d'accès aux données vous concernant et les faire rectifier en contactant l'Agence / le Réseau.
Si vous estimez, après avoir contacté l'Agence / le Réseau, que vos droits « Informatique et Libertés » ne sont pas respectés, vous pouvez adresser une réclamation à la CNIL.
Nous vous informons de l’existence de la liste d'opposition au démarchage téléphonique « Bloctel », sur laquelle vous pouvez vous inscrire ici : https://www.bloctel.gouv.fr
Dans le cadre de la protection des Données personnelles, nous vous invitons à ne pas inscrire de Données sensibles dans le champ de saisie libre
Ce site est protégé par reCAPTCHA, les Politiques de Confidentialité et les Conditions d'Utilisation de Google s'appliquent.
