Les infos Essentielles
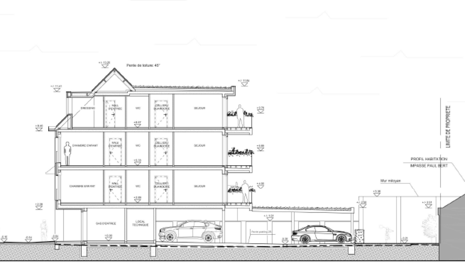
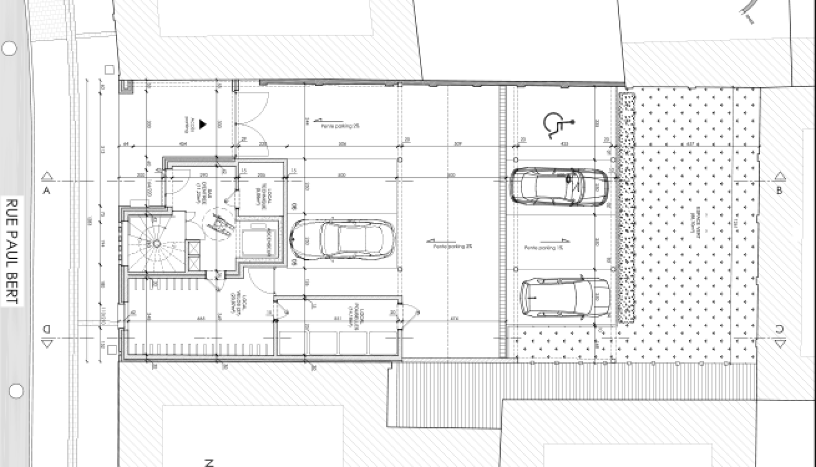
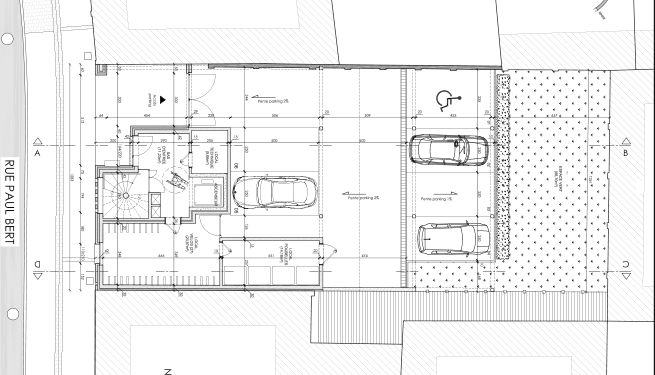
NOUVEAU à ROSENDAEL ! Soyez les premiers à choisir votre appartement neuf et à investir dans notre nouvelle résidence. Cette nouvelle résidence propose des appartements fonctionnels, avec terrasse, conçus pour offrir un cadre de vie confortable et adapté aux besoins des retraités et jeunes actifs. Chaque logement bénéficie de prestations soignées, avec un local à vélos communs et d'un parking privative. La résidence s’intègre harmonieusement dans un environnement paisible et verdoyant. Située dans un quartier résidentiel calme, elle se trouve à seulement 5 minutes à vélo de la plage. Commerces, services et équipements sont accessibles à pied ou à quelques minutes.
A partir de 228 000.00 € FAI
Localisation Du bien
-
Commerces et santé
-
Loisirs
-
Ecoles
-
Transports
-
Pratique
Les infos Energetiques
Ce site est protégé par reCAPTCHA, les Politiques de Confidentialité et les Conditions d'Utilisation de Google s'appliquent.
Détails des diagnostics énergétiques
Maison de 1930 entiérement rénové
